Grynszpan
Grynszpan
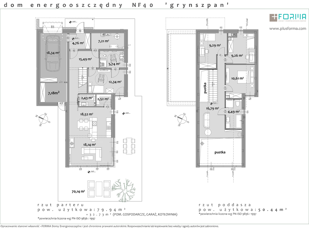
Krótka charakterystyka budynku:Projekt wykonany na konkurs wydawnictwa Murator na Dom Dostępny 2021r. Prezentowany na pokonkursowej wystawie podczas Międzynarodowych Targów Budownictwa BUDMA w Poznaniu. 'Grynszpan' to energooszczędny dom z charakterem, zaprojektowany z myślą o 4 lub 5 osobowej rodzinie. Z możliwością zamieszkania w nim osoby na wózku inwalidzkim. Dom w standardzie NF 40, kwalifikuje sie do otrzymania dopłaty do kredytu na jego budowę. Powierzchnia użytkowa łącznie z garażem, pom. gospodarczym i kotłownią wynosi 163,11 m2. Bryła domu jest prosta, ale dokładnie przemyślana, uskok w wysokości kalenicy pozwolił zastosować dodatkowe przeszklenia, które doskonale odświetlają wnętrze. Salon, otwarty na dwie kondygnacje, dzięki szklanej fasadzie i połączeniu z jadalnią oraz kuchnią jest jasny przestronny i zintegrowany z otoczeniem. Na poddaszu znajdują się trzy pokoje, łazienka oraz otwarta część wspólna mogąca pełnić rolę biblioteczki czy miejsca do nauki. |
Opis technologii budynku:Konstrukcja oraz propozycje materiałowe:
W projekcie zastosowano wentylację mechaniczną z rekuperacją. |
Szacunkowe koszty budowy:
|
Stopień energooszczędności:
|
Podstawowe dane liczbowe:
|





