Marengo
Marengo
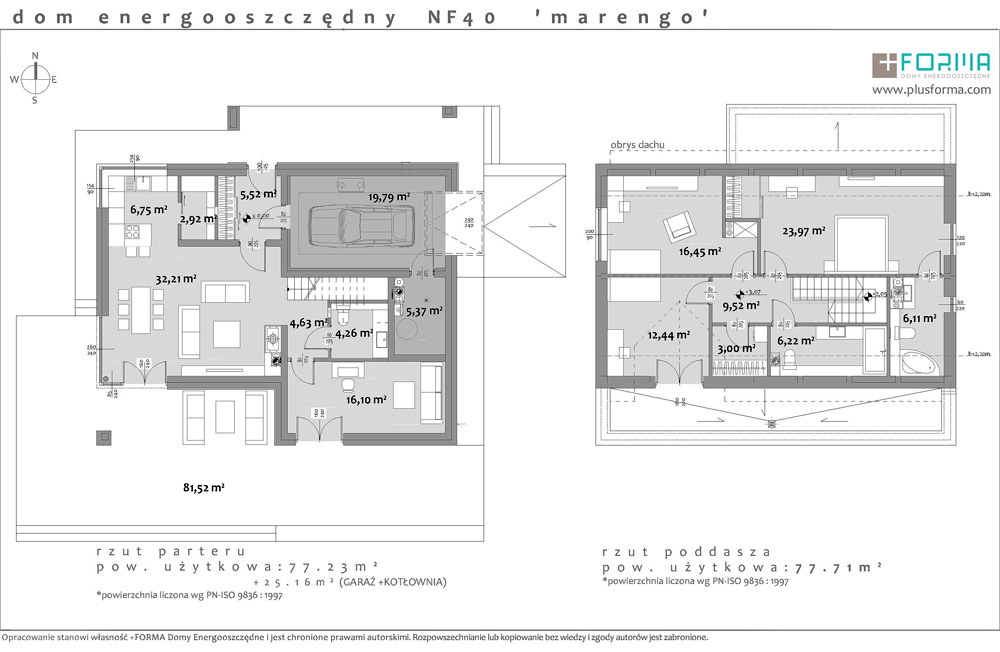
Krótka charakterystyka budynku:Trzy główne zalety: - niebanalny wygląd - otwarte i przestronne wnętrze - częściowo zadaszony taras 'Marengo' to nowoczesny dom energooszczędny zaprojektowany z myślą o 4 osobowej rodzinie. Dom w standardzie NF 40, kwalifikuje sie do otrzymania dopłaty do kredytu na jego budowę. Powierzchnia użytkowa łącznie z garażem wynosi 141,06 m2. Elegancka i prosta architektura w nowoczesnym stylu. Oszczędność detali sprawia, że dom dobrze wpisuje sie w każdy krajobraz. Wejście do budynku prowadzi przez zadaszony ganek. Największą powierzchnię parteru zajmuje część wspólna wszystkich domowników: kuchnia, jadalnia i pokój dzienny z dużym wyjściem na taras i do ogrodu. Przy kuchni zaprojektowaliśmy sporą spiżarnię - bardzo przydatny element w każdym domu. Na poddaszu znajdują się trzy pokoje; sypialnia małżeńska posiada własną łazienkę i garderobę. |
Opis technologii budynku:Konstrukcja oraz propozycje materiałowe:
W projekcie zastosowano wentylację mechaniczną z rekuperacją. |
Szacunkowe koszty budowy:
|
Stopień energooszczędności:
|





